Suncity La Lagune is a luxury residential project in Sector 54, Gurgaon, located near Golf Course Road. It features spacious , 4, and 5 BHK apartments spread across 11.34 acres and includes modern amenities like a swimming pool, clubhouse, gym, and sports courts. The ready-to-move-in project is known for its high-end finishes like Italian marble, advanced security systems, and excellent connectivity to key areas in Gurgaon.
Project overview
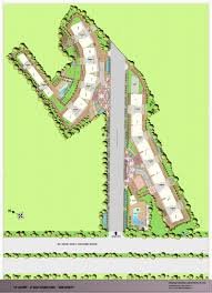
Location: Sector 54, Gurgaon, with excellent connectivity to Golf Course Road and Sector 54 Chowk Metro station.
Project size: Spread across approximately 11.34 acres.
Number of units: 314 luxury units across 11 towers.
Apartment types: Spacious 3, 4, and 5 BHK apartments and penthouses.
Status: Ready-to-move-in.
Key features and amenities
Apartment features:
Fully air-conditioned with Italian marble flooring in living areas and bedrooms.
Modular kitchens and designer woodwork.
Servant rooms and separate service elevators in some units.
Apartments on the 1st floor feature a lap pool.
Community amenities:
Swimming pool, clubhouse, and spa.
Gym, aerobics center, and health club.
Sports facilities, including a basketball court and tennis court.